510 mq
Nel comune di Villorba vendiamo un lotto con il progetto di questa villetta singola dalle forme moderne e dalla distribuzione degli spazi funzionale!
La villetta singola si sviluppa su un comodissimo piano unico.
Il lotto si trova nelle vicinanze del centro del paese e quindi comodo a scuole, negozi e servizi.
A 10 minuti, con i mezzi o in auto possiamo recarci al centro storico dalla meravigliosa e suggestiva città di Treviso.
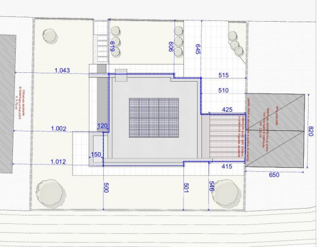
Il terreno su cui verrà edificata la casa, è di circa 510 mq e la superficie coperta e di circa 130 mq, all'interno dei quali, trovano spazio tutti i vani essenziali:
un ampio soggiorno con cucina (open di 40 mq utili), tre camere in ordine decrescente da 14,6 mq, 11,4 mq e 10,20 mq, un bagno da 6,7 mq ed una lavanderia da mq 3,8.
Si precisa che il prezzo di acquisto del lotto edificabile è comprensivo del presente progetto. Il lotto è urbanizzato e pronto per essere edificato!!!!!
Per motivi di privacy l'indirizzo che compare nell'annuncio non è quello dell'abitazione in oggetto, ma è solo indicativo e maggiori informazioni verranno fornite contattando il n. 0422 882318 (riferimento Francesco)

510 mq